Mountain House Exclusive Product from SOEASY Modular House Company:
Customer from Europe would like to selling our houses there, this is the sample house display to the local potential customers.
35M2 Customized design with outdoor SPC decoration cover, grey color matching with the customized roof dark grey color,
Indoor with the bamboo decoration cover.
Gypsum board ceiling, and PCV floor tile, comfigured with bathroom sanitary ware, small kitchen cabinet.

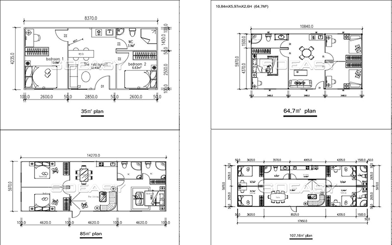
For this Mountain House we total have 4 size and difference layout for selecting, they are all suitable for Family House, Holiday resort and Villa house.
SOEAsY's designs accurately address challenges in Prefab House-whether for Holiday house and family house, they turn prefab house into safe
GET IN TOUCH.........
Click here to send me a whatsApp message directly:official website:
https:www.foldingcontainerhouse.com
https:/www.soeasycontainerhouse.com
Whatsapp:0086-15625418620
digitalizar para wechat:
